De Acacia 99 te Burgum
Op een fijne locatie in een rustige woonwijk in Burgum staat deze nette tussenwoning met voor- en achtertuin. De zonnige achtertuin op het zuiden beschikt over een achterom. De verzorgde achtertuin is in 2021 aangelegd en de vrijstaande houten schuur is in 2020 geplaatst. De woning is gebouwd in 1981, de kruipruimte is in 2021 met EPS-parels geïsoleerd, de gevels zijn in 2022 na-geïsoleerd en in 2023 zijn er 14 zonnepanelen geplaatst. Hierdoor beschikt de woning over een energielabel A, wat zorgt voor comfortabel en energiezuinig wonen.
De woning ligt op korte afstand van diverse winkels, scholen, sportverenigingen en uitvalswegen, met goede verbindingen richting onder andere Leeuwarden, Groningen en Drachten. Parkeren kan vrij op de openbare weg in de straat.
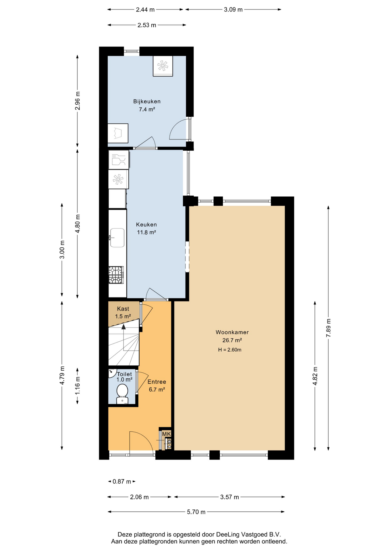
Indeling: Begane grond: Via de entree kom je in de hal met toilet, trapopgang en praktische trapkast. De lichte woonkamer staat in open verbinding met de keuken, die is voorzien van diverse inbouwapparatuur. Vanuit de keuken bereik je de aangebouwde bijkeuken, ideaal voor extra bergruimte en witgoed. Via de bijkeuken stap je zo de zonnige achtertuin op het zuiden in.
Eerste verdieping: Op de eerste verdieping bevindt zich de overloop met toegang tot drie slaapkamers en de badkamer. De badkamer is compleet uitgerust met een bad, douche en wastafel.
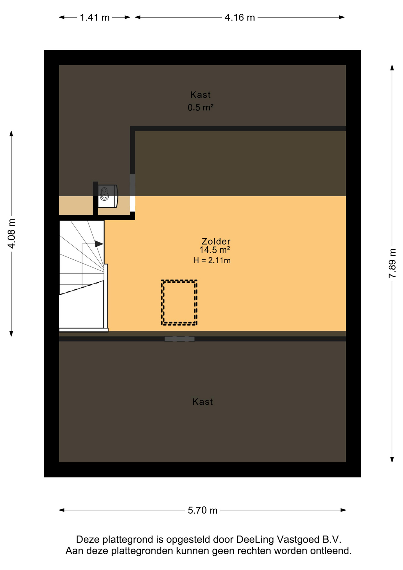
Zolderverdieping: De zolder is bereikbaar via een vaste trap en biedt een vierde slaapkamer, extra bergruimte en de opstelling van de cv-ketel.
Bijzonderheden:
– Houten schuur uit 2020
– Achtertuin aangelegd in 2021;
– Kruipruimte isolatie 2021;
– Na-isolatie gevel 2022;
– 14 zonnepanelen in 2023;
– Groepenkast vernieuwd in 2023;
– Energielabel A.
Oplevering in overleg.
Een comfortabele gezinswoning op een prettige locatie in Burgum – zeker een bezichtiging waard!
Deze informatie is door ons met de nodige zorgvuldigheid samengesteld, veelal aan de hand van de door verkoper aan ons ter hand gestelde gegevens en tekeningen. Onzerzijds wordt echter geen enkele aansprakelijkheid aanvaard voor enige onvolledigheid, onjuistheid of anderszins, dan wel de gevolgen daarvan. Dit geldt voor onder meer de opgegeven maten, oppervlakten, isolatie en ouderdom van technische installaties. Toelichtingsclausule NEN2580: De Meetinstructie is gebaseerd op de NEN2580. De Meetinstructie is bedoeld om een meer eenduidige manier van meten toe te passen voor het geven van een indicatie van de gebruiksoppervlakte. De Meetinstructie sluit verschillen in meetuitkomsten niet volledig uit, door bijvoorbeeld interpretatieverschillen, afrondingen of beperkingen bij het uitvoeren van de meting.













